Troya Butik Evleri Beşevler
Troya Butik Evleri Beşevler
Troya Butik Evleri Beşevler

Şehrin Kalbinde, Butik ve Seçkin

DURUM Satışta
KONUM Beşevler - Bursa
YAPI TİPİ Konut
TESLİM TARİHİ Mart 2026

Beşevler, Bursa'nın en köklü ve en merkezi lokasyonlarından biridir. Troya Butik Evleri, bu merkezi lokasyonun avantajlarını, butik bir yaşam konseptiyle sunuyor. Büyük sitelerin kalabalığından hoşlanmayan, daha az komşuyla daha samimi ve sakin bir apartman kültürü arayanlar için ideal bir projedir.

 

Şehirli ve Dinamik: Projenin en dikkat çeken özelliği, zemin katında yer alan ticari alanlarıdır. Görsellerimizde de görebileceğiniz gibi, evinizin hemen altında şık bir "Coffee House" (Kafe) ve "Bookstore" (Kitabevi) konsepti planlanmıştır. Sabah kahvenizi içmek veya bir kitap alıp okumak için asansöre binmeniz yeterli.

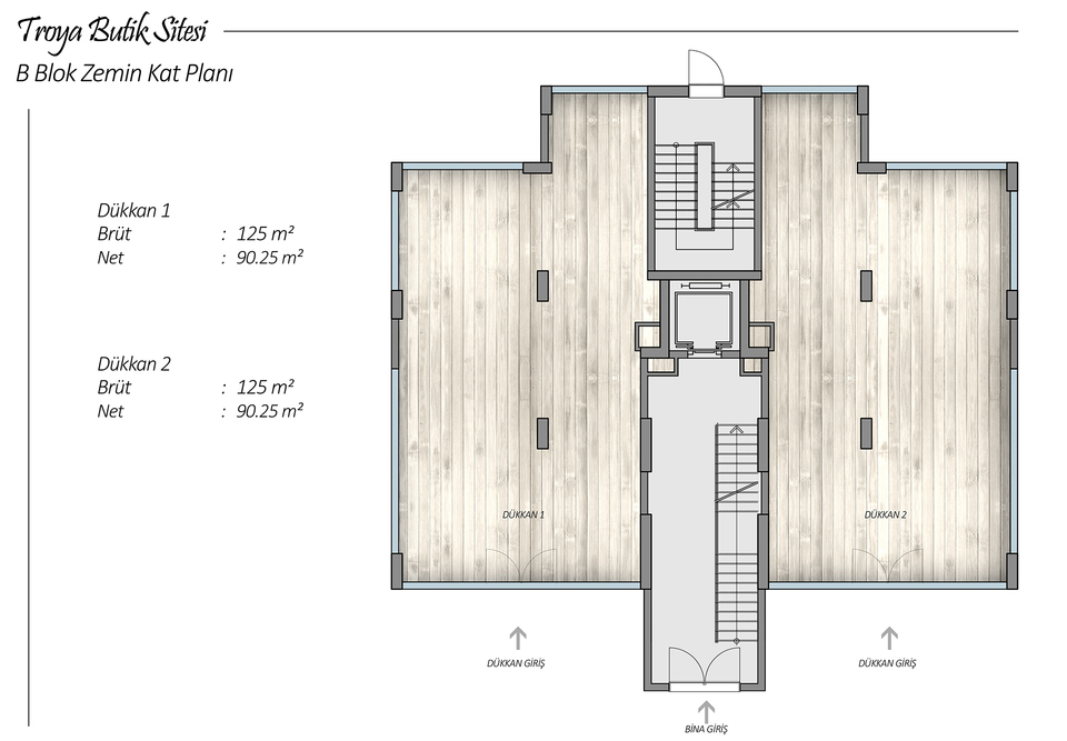
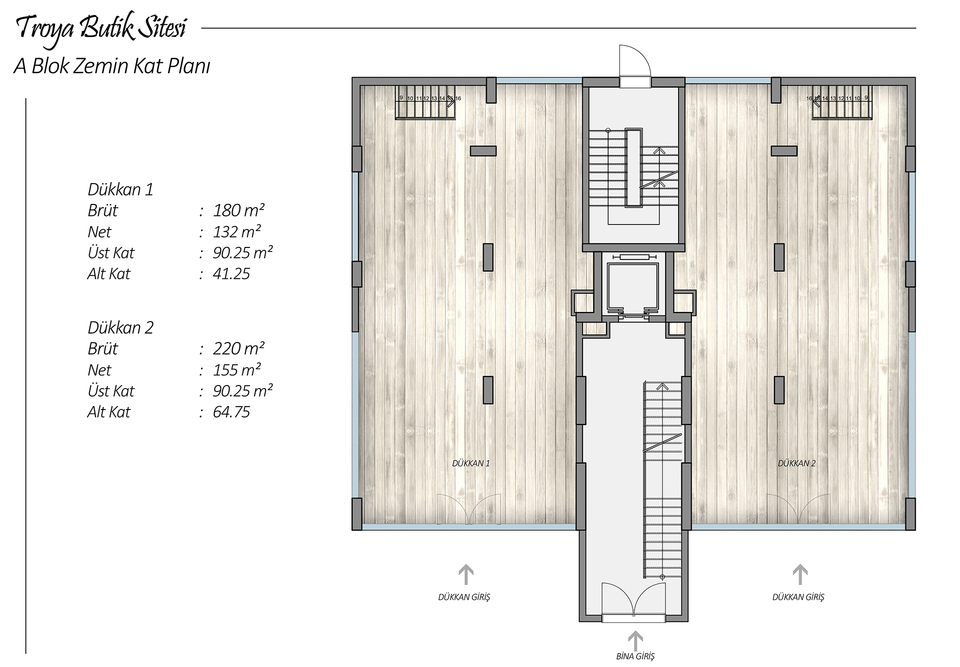
2+1’den oluşan toplam 28 daire ve 4 dükkânın yer aldığı Troya Butik Evleri Beşevler, modern yaşamın tüm ihtiyaçlarına cevap verecek şekilde tasarlanmıştır. Her daireye özel 1 adet otopark alanı sunan projemiz, hem konfor hem de kullanım kolaylığı sağlar.

PROJE ÖZELLİKLERİ
  • Mimari
  • Gastronomi
  • Konum
  • Yaya ve Araç Girişleri
  • Sosyal Çevre
  • Otopark
  • Sinema
  • Market

Mimari Detaylar:

  • Gri ve antrasit tonların hakim olduğu modern dış cephe.

  • Fransız balkonlar ve geniş pencerelerle maksimum gün ışığı.

  • Şehrin sosyal olanaklarına, okullara ve alışveriş noktalarına yürüme mesafesinde.

Troya Butik, Beşevler'in merkezinde, hem konforlu bir ev hem de yüksek kira getirisi potansiyeliyle akıllı bir yatırımdır.

KAT PLANLARI
Troya Next
SONRAKİ PROJE